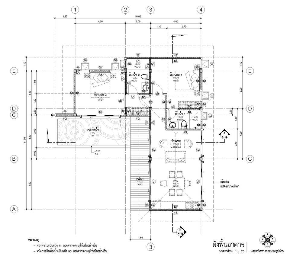
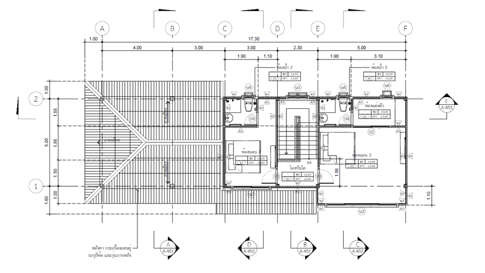
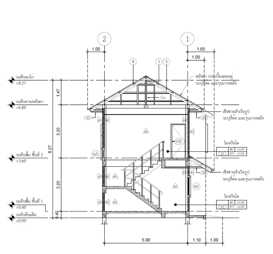
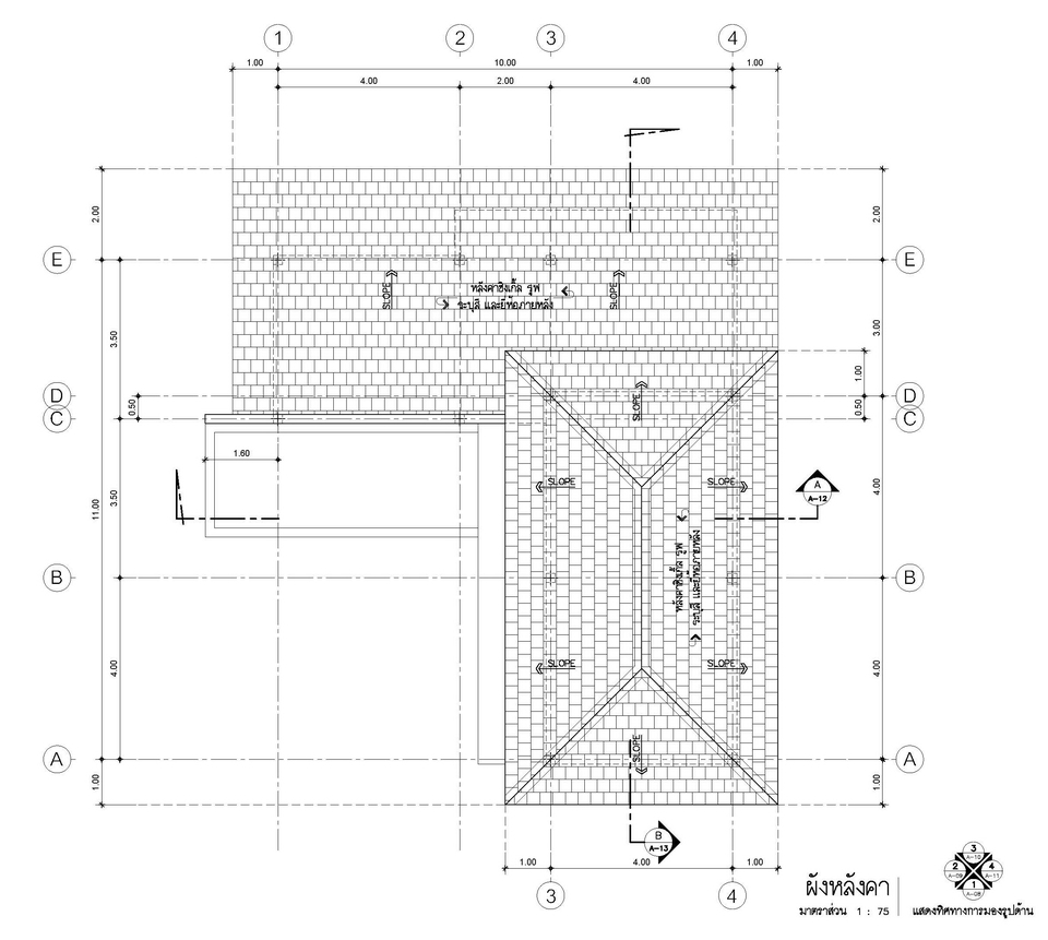
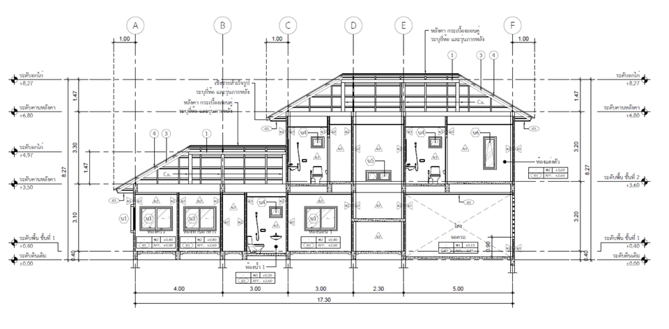
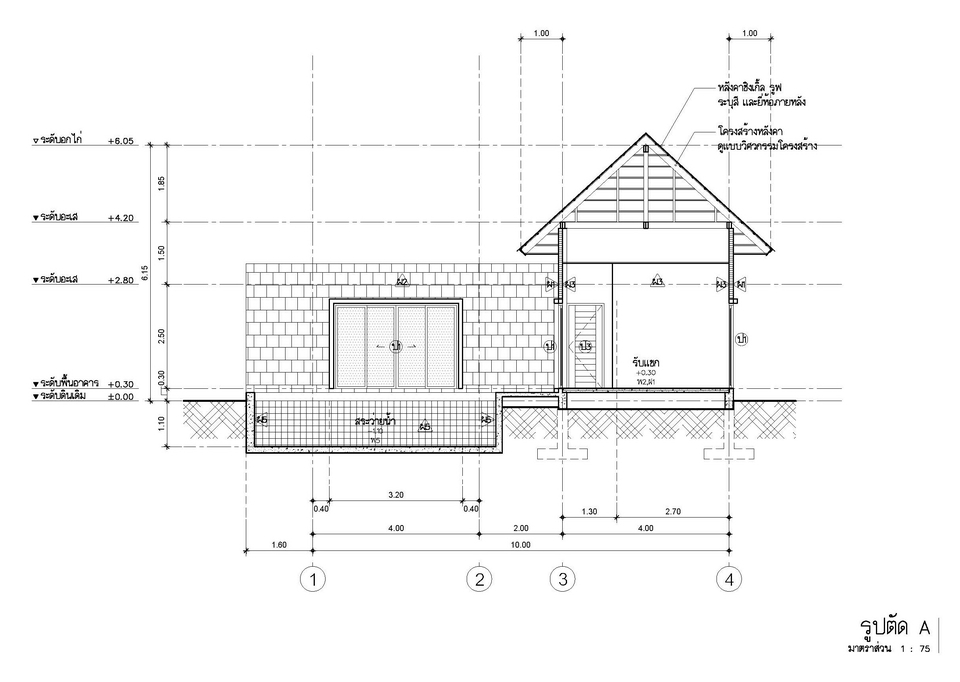
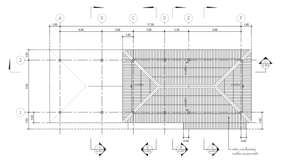
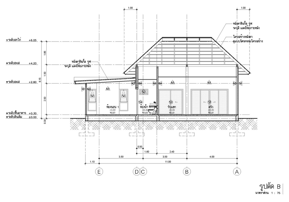
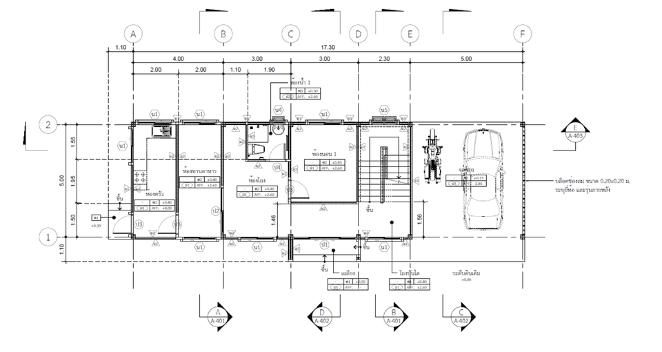
เขียนแบบขออนุญาตก่อสร้างอาคาร อาคารทุกประเภท
-แบบสถาปัตยกรรม
-แบบวิศวกรรมโครงสร้าง
-แบบงานระบบไฟฟ้า
-แบบงานระบบสุขาภิบาล
พื้นที่รับงาน
วันและช่วงเวลาทำงาน
วันทำงาน
ช่วงเวลาทำงาน
9.00
17.00
ราคาและการส่งงาน
1.แบบก่อสร้างอาคารฉบับจริง
2.ไฟล์งาน Cad(Dwg) , PDF , JPG
3.เอกสารรับรองจากสถาปนิก และวิศวกร ( กรณีเข้าข่ายสถาปนิก และวิศวกรควบคุม )
4.รายการคำนวนโครงสร้างจากวิศวกร ( กรณีเข้าข่ายสถาปนิก และวิศวกรควบคุม )
*สิ่งที่ไม่รวมในรายการ สามารถแจ้งได้ มีค่าใช้จ่ายเพิ่มเติมตามรายละเอียด
1.BOQ รายการประมาณราคา( มีค่าใช้จ่ายเพิ่มเติม 3,500 บาท )
แพ็คเก็จ
| ชื่อแพ็คเก็จ | A : เขียนแบบก่อสร้างอาคาร พื้นที่ไม่เกิน 149 ตร.ม ( หรือไม่เข้าข่ายสถาปนิก และวิศวกรควบคุม ) | B : เขียนแบบก่อสร้างอาคาร พื้นที่ตั้งแต่ 150 ตร.ม ขึ้นไป ( หรือเข้าข่ายสถาปนิก และวิศวกรควบคุม ) | |
|---|---|---|---|
| รายละเอียด Package | *ราคาเริ่มต้นอยู่ที่ 7,500 บาท ( ในกรณีพื้นที่อาคารไม่เกิน 50 ตร.ม ) *ตั้งแต่พื้นที่อาคาร 51 ตร.ม ขึ้นไป คิดราคาเพิ่ม ตร.ม ละ 150 บาท สิ่งที่จะได้รับ 1.แบบก่อสร้างอาคารฉบับจริง 2.ไฟล์งาน Cad(Dwg) , PDF *สิ่งที่ไม่รวมในรายการ สามารถแจ้งได้ มีค่าใช้จ่ายเพิ่มเติมตามรายละเอียด 1.BOQ รายการประมาณราคา( มีค่าใช้จ่ายเพิ่มเติม 3,500 บาท ) | *คิดราคาเพิ่ม ตร.ม ละ 150 บาท สิ่งที่จะได้รับ 1.แบบก่อสร้างอาคารฉบับจริง พร้อมเอกสารรับรองจากสถาปนิก และวิศวกร 2.ไฟล์งาน Cad(Dwg) , PDF , JPG 3.รายการคำนวนโครงสร้างจากวิศวกร *สิ่งที่ไม่รวมในรายการ สามารถแจ้งได้ มีค่าใช้จ่ายเพิ่มเติมตามรายละเอียด 1.BOQ รายการประมาณราคา( มีค่าใช้จ่ายเพิ่มเติม 3,500 บาท ) | |
| จำนวนชิ้นงานที่ส่งมอบ | 1 ชิ้น | 1 ชิ้น | |
| ระยะเวลาดำเนินการ | 15 วัน | 25 วัน | |
| ราคางาน | 7,500 บาท | 32,500 บาท | |
| สนใจจ้างงาน | |||
จำนวนการเข้าชม




Line Official Account